Ein Experiment, das mehr wert ist als 1000 Expertenmeinungen
Im Jahr 1941 gründete der Ingenieur Villum Kann Rasmussen ein Unternehmen, das sich der Verbesserung von Tageslicht und Belüftung in Gebäuden widmete.
VE steht für Ventilation, LUX für Licht. Seine experimentelle Haltung prägt VELUX bis heute – vom ersten Dachfenster bis zum LKR Innovation House in Østbirk.
Vom Holzlager zum Innovationslabor
Das ehemalige Holzlager in Østbirk wurde Anfang der 1990er Jahre als großmaßstäbliches Holz-Experiment weitergedacht: ein Lagerhaus aus unbehandeltem, lokal bezogenem Holz, modular konstruiert und mit Dachfenstern ausgestattet – ein früher Vorgriff auf CO₂-arme, kreislauffähige Bauweisen.
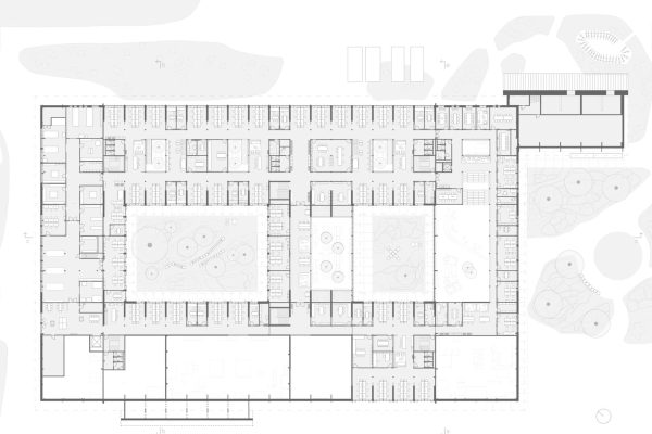
Der Umbau zum LKR Innovation House von PRAKSIS Arkitekter erhält die tragende Holzkonstruktion und den Betonboden weitgehend und ergänzt zwei Innenhöfe, Oberlichter und Fassadenöffnungen. Tageslicht, natürliche Belüftung und Sichtbezüge strukturieren den Grundriss und schaffen Arbeitslandschaften für rund 500 Mitarbeitende aus Design, Entwicklung und Umsetzung.
Architektur, Nutzung und Flexibilität
Der Eingriff transformiert die ehemaligen LKW-Rampen zur neuen Adresse mit dem Namen „Daylight Square“ und verbindet das Gebäude mit dem angrenzenden Landschaftspark. Die drei Hallenschiffe mit identischen Holzbögen bleiben als robuste Primärstruktur bestehen und die Dachelemente folgen dem konstruktiven Raster und erlauben ein präzises Setzen von Öffnungen.
Die modulare Holzfassade wurde demontiert, gedämmt, wiederaufgebaut und punktuell durch Verglasungen ersetzt und die variierenden Bretterrichtungen und vorspringenden Rahmen bleiben als atmosphärische Schicht erhalten.
Innen sorgen gemeinsam genutzte Zonen, flexible Arbeitsbereiche sowie ein eigener Bereich für Studierende und Startups für eine hohe Adaptivität des Raumgefüges.
Kreislaufgerechte Konstruktion und Materialstrategie
Das Projekt versteht sich als prototypische Strategie für Bauen im Bestand mit maximaler Wiederverwendung. Tragwerk, Dachfläche und große Teile des Betonbodens bleiben erhalten und ausgesägte Betonplatten wurden als Außenpflaster und Sitzmöbel weitergenutzt.
Ausgediente Innenwände, Gipskarton und Mineralwolle werden sortenrein dem Recycling zugeführt und selbst Büromöbel des Bestands werden aufgearbeitet und weiterverwendet. Die so erzielten Reduktionen von Ressourcenverbrauch und CO₂-Emissionen wurden bilanziert und machen das Gebäude zu einem anschaulichen Referenzprojekt für kreislaufgerechtes Bauen.
Eins mit der Natur in jeder Hinsicht
Unter dem Leitmotiv „Mit der Natur in allen Maßstäben“ vereint das Projekt Gebäude, Freiräume und Landschaft zu einem biodiversitätsfördernden Ensemble. Innenhöfe mit hohem Gras, Felsen und Bäumen bringen ökologische Nischen und Aufenthaltsqualität in die Tiefe des Bestands.
Außen werden versiegelte Flächen zurückgebaut, ein Teich angelegt und üppig begrünte Zonen mit Fahrradunterständen und Sitzplätzen geschaffen. Die wichtigste Maßnahme ist „Nature Østbirk“, ein 70.000 m² großer, öffentlich zugänglicher Landschaftspark mit Wegen, Vogel- und Naturbeobachtungstürmen sowie Picknickplätzen aus lokalem Holz, der als grünes Kontinuum das Campusareal mit dem Ort verbindet.
Mit dem Laden des Videos akzeptieren Sie die Datenschutzerklärung von YouTube.
Mehr erfahren
Dir hat der Beitrag gefallen? Dann teile ihn mit Deinen Kollegen:
Du willst Dich weiterbilden?
Du hast Fragen zu diesem Beitrag?
Hast Du Fragen zu diesem Beitrag von unserem Partner? Dann kontaktiere uns gerne über das untenstehende Formular! Deine Ansprechpartnerin ist Elena.

















